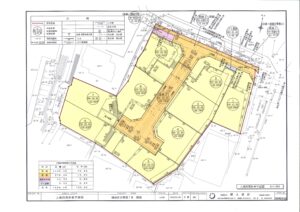
【日野4丁目開発9区画】令和7年8月25日現地造成工事開始しております。
開発許可番号:横浜市建調整指令第2025開603号

当社販売管理会社になります。ご興味あるお客様には現地にてご説明させていただきます。
※ご契約の締結は出来ません。開発工事後のご契約締結となります。
【日野4丁目開発9区画】令和7年8月25日現地造成工事開始しております。
開発許可番号:横浜市建調整指令第2025開603号

当社販売管理会社になります。ご興味あるお客様には現地にてご説明させていただきます。
※ご契約の締結は出来ません。開発工事後のご契約締結となります。
Copyright © index japan All Rights Reserved.